Wissenschaft und Ästhetik
Für den neuen Campus der BAM in Adlershof stellt sich die Frage: Was finden Forscher schön?
Beschreibung
Die Funktionsbauten der BAM in Adlershof erhalten eine umfangreiche Erweiterung. Das städtebauliche Motiv des Mäanders bildet dabei eine Reihe klar definierter Raumbilder aus.
Zwischen Bestand und Neubauten entsteht der zentrale Platz als neue Mitte. Dieser Campus ist streng und elegant formuliert als plattenbelegter Platz mit pflanzlichen Intarsien. Gräser und grasblättrige Blütenstauden sind in systematischen Gruppen wie im Sichtungsgarten arrangiert. Die Skulpturengruppe „Funken“ von Chili Seitz thematisiert Formationen der bei der BAM angewandeten Schleiffunkenanalyse.
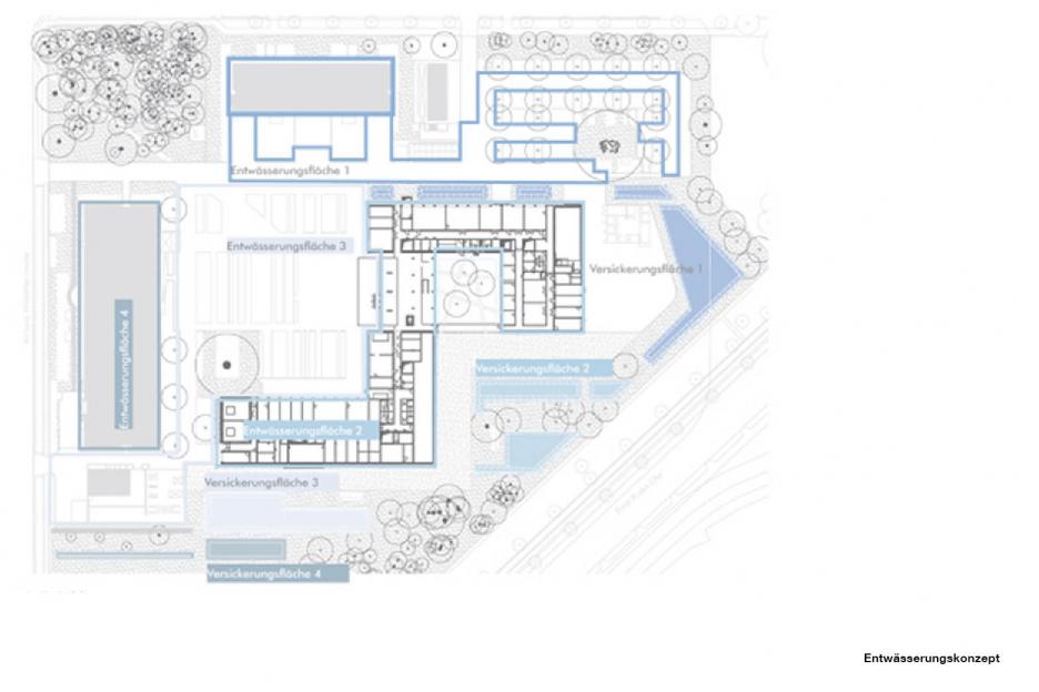
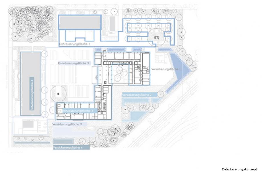
Der Gartenhof im Neubau ist spröde - Metallflächen, Schieferfelder und Eisenholzbäume thematisieren das kulturelle Urelement Eisen. Den Robinienwald in signifikanter Ecklage, durchquert ein leichter Gittersteg. Ein Saum aus eingesenkten Grasfeldern mit baumbestandenen Inseln dient der Versickerung des Regenwassers.
Funktional wird das Ensemble mit neuer Erschließungsachse, Parkplätzen und einem Wirtschaftshof ertüchtigt.
Bundesamt für Bauwesen und Raumordnung
Berlin
Begrenzt offener Realisierungswettbewerb 2006
1.Preis
Objektplanung Freianlagen LPh 2-9
Planung 2007-2011
Bau 2012-2014
netto 1,8 Mio. €
3,0 ha
Hochbau:
kleyer.koblitz.letzel.freivogel. Gesellschaft von Architekten mbH, Berlin
Konzept Regenwasser:
Müller-Kalchreuth, Büro Berlin
Philip Winkelmeier
























