2. Preis
Beschreibung
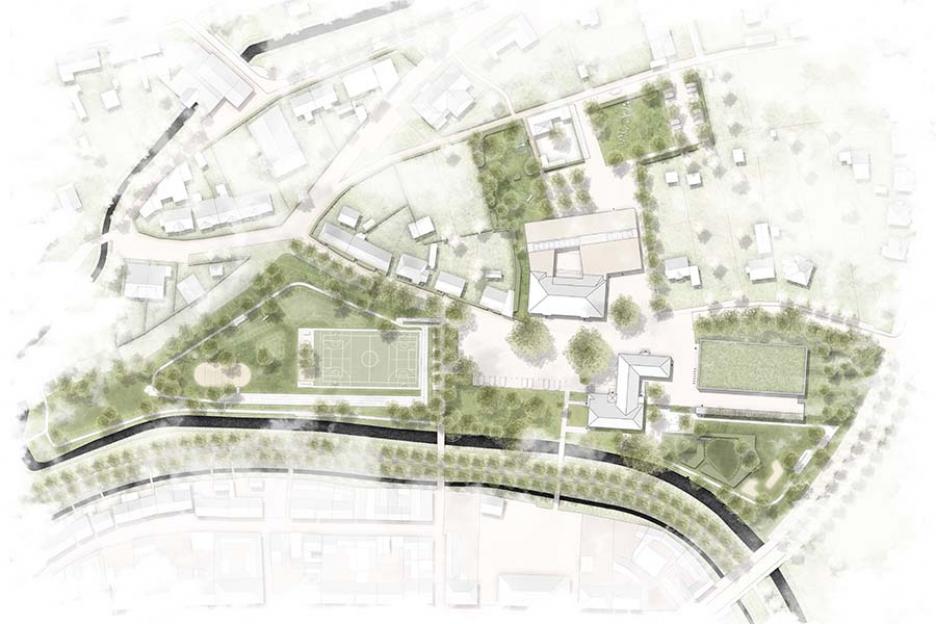
Eingebettet in eine ereignisreiche, parkähnliche Spiel- und Sportlandschaft, werden die Neubauten im Zusammenspiel mit den Bestandsbauten und der Topografie zu einem präzisen Ensemble gefügt.
Ein zentraler Platzraum bindet als freiräumliches Foyer die Gebäude zusammen und erschließt die neuen Freiräume - Schulhof, Hortgarten und Schulsportpark. Als Haupterschließung des Geländes dient eine Wegespange, die im Süden an bestehende Verbindungen in die Altstadt anschließt.
Der ins Grün eingebettete Schulhof geht in den Kulissen der angrenzenden Gartensituationen auf.
Eine lebendige, fließende Topografie bestimmt den Spiel- und Sportpark. Der umschließende Rundweg dient gleichzeitig als Laufbahn.
Ein großer Stadtbalkon zwischen Hortgebäude und neuer, versenkt gelegener Sporthalle inszeniert den Ausblick auf die Altstadt. Der Hortgarten wird um ein Freilufttheater, Spielinseln und Obstterrassen ergänzt; eine Wegeschleife führt durch eine reizvolle Folge von Gartenräumen.
Nichtoffener architektonischer Realisierungswettbewerb
Stadt Boizenburg/Elbe
kleyer.koblitz.letzel.freivogel Gesellschaft von Architekten, Berlin




