Rahmenplan Campus Berlin Buch

Biotech-Campus im Wald
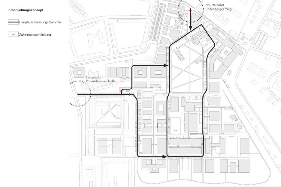
Der Freiraumloop schafft Klarheit, Orientierung und Adressen. Der Charme des Campus im Wald bleibt erhalten.

Bilder

Pläne

Beschreibung

Im Rahmen des Gesamtkonzeptes wird ein zukunftsweisendes Leitbild für den Städtebau und die Landschaftsarchitektur auf der Campus-Liegenschaft entwickelt, die dem Anspruch eines führenden Wissenschaftsstandortes gerecht wird.

Der Freiraum des Campus Berlin - Buch wird durch seine ausgeprägten, gewachsenen Grün- und Waldstrukturen als etwas Außergewöhnliches und Atypisches für einen Forschungs- und Wirtschaftsstandort wahrgenommen. Dieses Potential ist von besonderer Qualität für einen Gesundheitscampus. Mit dem landschaftsplanerischen Rahmenplan werden die Potentiale des Freiraums herausgearbeitet. Der Campus wird nicht als gleichförmige Parklandschaft verstanden, sondern als ein hierarchisches Freiraumsystem, das die Eigenheiten und Begabungen einzelner Orte schärft und dennoch den Campus als Gesamtes betrachtet. Zugleich erhöht sich die Identifikation mit dem Standort Buch und damit die Wahrnehmung von außen als hochwertiger und repräsentativer Campus-Standort.

Jahr
2012
Auftraggeber

BBB Management GmbH Campus, Berlin-Buch
Max-Delbrück-Centrum für Molekulare Medizin, Berlin-Buch Leibniz - Institut für Molekulare Pharmakologie
Charité Universitätsmedizin, Berlin

Verfahren

Nichtoffener kooperativer Wettbewerb 2010, 1. Preis

Leistung

Städtebaulicher und landschaftsplanerischer Rahmenplan des Campus Berlin-Buch

Umsetzung

2012

Fläche

32,0 ha

Projektpartner

kleyer.koblitz.letzel.freivogel. Gesellschaft von Architekten mbH, Berlin